Description
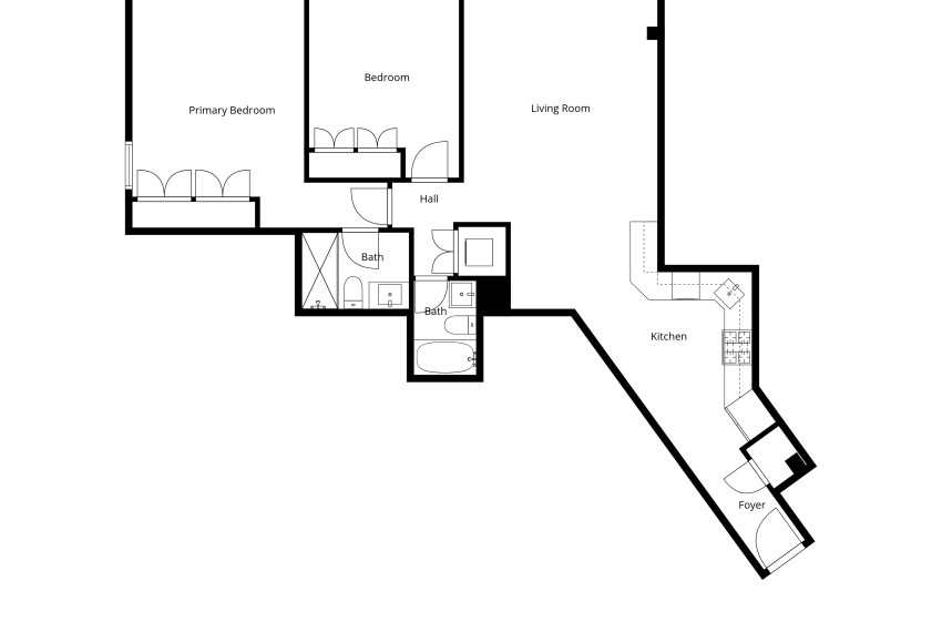
Stunning, fully renovated 2-bedroom, 2-bath in this well-maintained elevator condo building in Windsor Terrace.
Bright, open-plan living with high-end finishes, separate dining area, lots of windows, abundant natural light, and designer high-end kitchen and bathrooms — perfect for comfortable city living or a stylish Brooklyn pied-à-terre, steps from Prospect Park.
The apartment is overlooking Terrace Place, a charming tree-lined street
Key features
Spacious 2 bedrooms, 2 full bathrooms
Open chef’s kitchen with quartz counters and stainless steel appliances
separate dining area
Hardwood floors throughout, recessed lighting
Spacious living/dining area with large windows and abundant natural light
Modern, spa-like bathrooms with walk-in showers/tiled finishes
In-unit washer/dryer and laundry room in the building
Ample closet/storage space
Heating and cooking gas are included in the common charges
Building & neighborhood
The Mews — boutique, well-maintained elevator condo building
Common roof terrace
Prime Windsor Terrace location: quiet residential streets, steps to Prospect Park, Park Slope, shops, and restaurants
Easy transit access nearby.
Pets are welcome.
Additional Details
- Monthly Common Charges
- $1105
- Monthly RE Taxes
- $949
